山谷松木小屋,坐享山峰壮丽之景

应老客户的要求,建筑师在夏蒙尼山谷设计了一座新的小屋,并监督了它的建造过程。 其场地位于50年代建成的住宅区内。从场地原始的总体规划中可以看出这里以前也是一座小屋。

这个位置享有勃朗峰天际线壮丽的景色。这处雄伟的景观视野是设计的出发点。

因此,我们决定在这里建造一个新的小屋。它为当代设计开辟了道路,让能耗得到充分的控制。我们的想法是最大限度地提高供热和通风系统的效率,把双分流式系统热交换器和高效燃油锅炉结合起来使用。

这个项目围绕两个主题进行设计:视野以及追求最大限度的太阳直射光。日影仪可以分析太阳对场地和建筑的影响。项目在现实场地的三维建模让我们能够精确地了解将会进入小屋的自然光强度,并从室内感受勃朗峰的壮丽景观。采用混合隔热设计,房屋全部采用混凝土结构和落叶松木地板覆层系统。

落叶松木板用于建筑主要外墙的百叶窗覆层系统,以便保证地面层和2层的浴室拥有良好的视野。 用于外墙的落叶松木经过特殊的加热处理,以便保持颜色的持久并防止烟灰的附着。

这个项目建在自然环境之中,石头基地的顶部为一个小木屋。 基地设有技术功能房和一个车库。这个项目的完成时间只有短短9个月。
















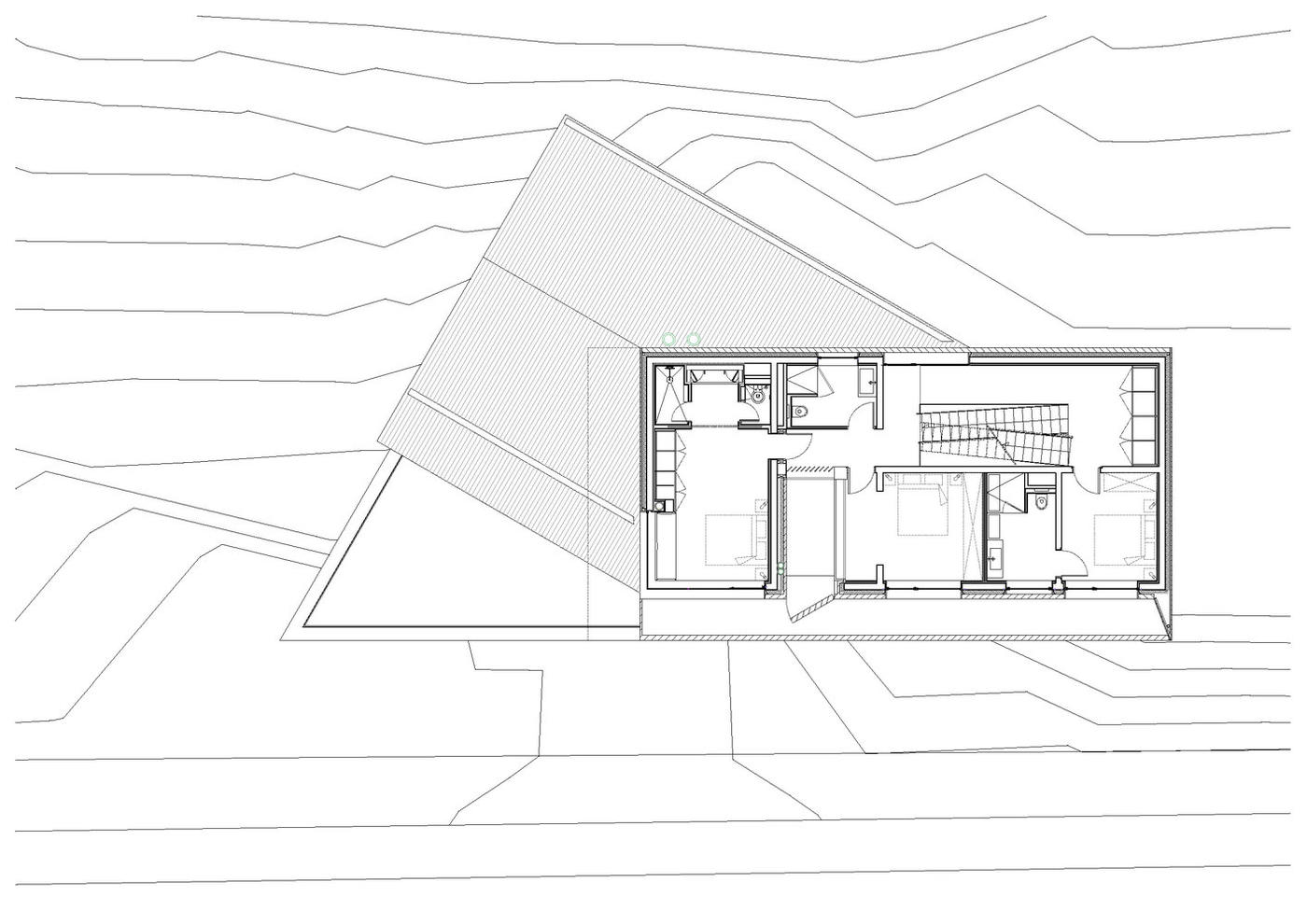
图纸

总平面图

一层平面图

二层平面图

三层平面图


立面图


剖面图

分析图




